Auszug Wickeltisch
Wickeltisch mit Schreinerdetails
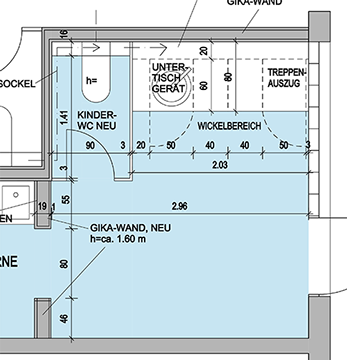
Planung Grundriss
Waschtisch
Ansicht Wickelbereich
5 - 5
<
>
Kita Pestalozzistrasse
Um auch Kinder unter drei Jahren betreuen zu können, wurde der Grundriss der Kindertagesstätte umstrukturiert
und renoviert. Für die 6-zügige Kita entstanden zwei Ruheräume und drei Wickelbereiche. Für die Erstellung der Wickelbereiche waren umfangreiche Baumaßnahmen in den Sanitärbereichen erforderlich. Die Planung wurde gemäß der Richtlinien der GUV ausgeführt. Im Auftrag waren die Leistungen Entwurf, Kostenschätzung bis Kostenberechnung nach DIN 276 für die Förderanträge
sowie Koordination und Abrechnung der verschiedenen Gewerke enthalten.
Bauzeit: 3 Monate
Baukosten: 42.000 Euro
ArchitektIN Stephanie Schleffler I Keldenichstraße 66 I 40625 Düsseldorf-Gerresheim I Büro 0211 60 125 60 I Mobil . 0178 - 498 34 34